Content:
- Best lighting for watching movies
- Game room lights
- Lighting ideas for dining room
- Hallway Lighting Ideas
How to Create a Private Cinema at Home
The living room is an essential space for family gatherings and pronounces the tune of your home. It is not just the place where the family spends the most time together, but also a communal space where we connect with friends. In the past, the lighting design for the living room was predominantly utilized ornamental lamps to enhance the brightness and ambience of the living room. However, this style may look a bit dreary and somber for young people. For example, many young people prefer the concept of having their living room work as a home theater, allowing them to enjoy the pleasure of a cinema-like experience at home. How to create the best lighting for watching movies? By researching the lighting design for movie theater and private cinemas, which has become a trend nowadays, we may employ smart lighting solutions to create an exclusive cinema in the living room. In addition, smart lights may sync with smart TV, displaying the colors of the TV show in real time, allowing a more immersive experience.
What’s the Best Lighting for Watching Movies
Colored Light for Watching Movies—A Dramatic Effect
Whether it is a large cinema or a private cinema that has emerged in recent years, proper lighting and illumination design can modernize the theater and create an outstanding viewing experience for movie-goers, which in turn will result in a higher attendance rate. Whether it is the cinema light design shown in Fig. 1 or the private movie-watching light design as in Fig. 2, the interior decoration and lighting effects echo with each other, and the dramatic impact is amplified when illuminated with colored lights. I like how the facility looks now; it’s ready to provide moviegoers with new and exciting experiences.

Fig. 1 Cinema Lighting Design (Image source: Pexels)

Fig. 2 Private Cinema Lighting Design (Image source: Pexels)
Colored Lights that Sync with Movies
Downlights and spotlights are often used in cinemas to brighten the audience’s entrance and exit routes for practical lighting reasons. Cinemas frequently utilize colorful light strips for ambient lighting, which has a distinct aesthetic feel to it. There are a growing number of cinemas that employ commercial-grade smart lighting systems with dimmable light strips. Rocker switch is recommended for compact spaces, whereas lighting distribution boxes are commonly utilized for big ones to provide automated switchover. The theater will dim the lights according to the sort of film being exhibited so that the audience may enter into the movie’s ambiance with the immersive lights. Cinemas typically decrease the lighting to a single color, such as red, blue, or purple. Some theatres have the ability to regulate a number of lights at the same time to provide a layered color appearance. Lighting colors for different types of film are listed in Table 3 for your convenience.

Fig. 3 Relationship between lighting tones and film genre
Replicating the Secrets of Cinema Lighting Design
Meeting Mode: The Basis of Lighting Design for Movie Watching
When we want to turn a living room into a private cinema, we have to be mindful that the main role of the living room is still a shared area for the family and a gathering place with visitors. Let’s identify the universal purpose of a living room as “meeting mode”, which refers to the gathering and active area for the family and visitors. Therefore, the lighting layout of the movie mode has to be based on the general lighting function of the living room, so that the two modes may be achieved using one lighting arrangement.
The general lighting of a living room contains downlights, spotlights and strips to meet fundamental lighting needs. Colored light strips can be the backbone of the ambience for the movie mode while working as basic illumination. Wall washers may be used to brighten the TV wall and the wall behind the sofa.
Under the “meeting mode”, suitable color temperature and brightness may produce a cheerful and welcome atmosphere (see Fig. 4). Further, we may employ the zoning feature of the lamps to establish various brightness for different places, thus accentuating the layering of the room.

Color temperature: ceiling spotlight/ lighting grid/ light strip 3500K
Brightness: ceiling spotlight/ lighting grid/ light strip 100%

Fig. 4 Pseudo-color diagrams of the lighting effects and illuminance for the “meeting mode”
Movie Mode: We can dim the overall ambient light when designing the color tone of the movie mode, while the brightness of the downlight above the coffee table can be slightly brighter, making it easier to reach the snacks and beverages on the table during the movie. As in Fig. 5, we have taken a cue from the cinema’s colored light design and set up colored ceiling light strips, which are blue in this case. The strip lights under the TV cabinet are red. The immersive color light scheme as such gives us the impression of sitting in a cinema.

Color Temperature:2700K
Color: Blue ceiling light strips
Red light strips underneath the TV cabinet
Brightness: 5% light grid; 20% light strips

Fig. 5 Pseudo-color diagrams of the lighting effects and illuminance for the “movie mode”
Smart Color Picker: Jump Out of the Screen
People won’t get tired of looking at the screen because it’s wider than their field of vision. A normal television set’s screen, on the other hand, is smaller than the viewer’s field of vision, so a transition in brightness between the bright TV screen and the dark background is required to keep the image from becoming too intense even when viewed for extended periods of time without compromising color resolution. Installing light stripes behind the TV, on the other hand, will make things easier on the eyes.
Imagine that while you’re sitting on the couch watching a movie, the colors on your TV screen are being synced in real time. You’ll get the best watching experience ever with this all-encompassing encounter (Fig. 6). You’re bathed in golden light when the movie depicts a stunning sunset scene, for instance. It’s conceivable, but yes, if you have smart lighting.

Color temperature: 2700K
Color: blue ceiling light strip; red light strip under the TV cabinet; TV wall’s color syncs with the TV show
Brightness: 5% light grid; 20% light strips

Fig. 6 Pseudo-color diagrams of the lighting effects and illuminance for the “movie mode”
Xiaomi Smart TV and Yeelight Smart Lighting’s colorful luminaires can be readily connected to other smart lights through a smart light connection. Zone A, Zone B, Zone C, and Zone D, as shown in Fig. 7, are referred to as the four hot zones by color picker. It is possible to beam a different hue light gadget into each hot spot. Its color is the same as the sum of the RGB color values found inside this hot zone. As a result, the TV image appears to be oozing out of the frame. When watching sci-fi, action, or animation films featuring vibrantly colored sequences, the color selector enhances the whole viewing experience.


Fig. 7 Introduction to the smart color picker (Image source: Yeelight)
An Easy Guide to Create a Private Cinema
Step 1: Create a lighting scheme for the space.
Use spotlights and light grids (double-headed spotlights) for the primary lighting and light strips for ambient lighting if the lighting design of the living area needs to satisfy both the “meeting mode” and “movie mode.” Both lighting settings discussed in this article are primarily intended for use in living rooms. As a result, many lighting situations may be created in the same home with the same set of smart lighting items, depending on our individual needs.

Step 2: Purchase of luminaires and smart linkage devices
The list of luminaires to be purchased is shown in Fig. 8. Additionally, smart curtains are an excellent investment if you’re looking for the best possible viewing experience. When you say “I want to watch a film” to the smart speaker, the smart curtain closes automatically and the smart lighting system turns on the “movie mode”. Even during the day, you can enjoy the same atmosphere as if you were sitting in a cinema.

Fig. 8 Recommendations for luminaires for “movie mode” and “meeting mode” (Image source: Yeelight)

Fig. 9 Purchase recommendations for smart devices for “movie mode” and “meeting mode” (Image source: Yeelight, Xiaomi)
Step 3: Set up lighting mode and smart linkage mode
The following settings are developed based on the designs shown in Fig. 5 and 6. To be clear, this is merely a broad overview of how the device works; the particular stages depend on the device’s current configuration.
1. Connect the smart home system to the device.
In accordance with the advice provided in the product manual, hook up the smart luminaire, smart curtain, and speaker to your smart home system.
2. Put lights and lanterns in a logical arrangement.
Group the downlights or spotlights except for the light above the coffee table, and group the ceiling light strips, so that the light groups can be operated in a unified manner in the future.
3. Set voice control and lighting control modes.
See Fig. 10 for an example of Xiaomi smart speaker settings. Get started with voice control of your smart home by opening the ‘Xiaoxia App’ and activating the training mode. Initialize using “I want to watch a movie” as a voice command. Afterwards, add a command to the light and curtain motors to control the lights and curtains: shut them, dim the light above the coffee table, and convert the ceiling and TV cabinet light strips blue and red.

Fig. 10 Voice control commands and lighting control modes for “movie mode” (Image source: Xiao Ai app)
Step 4. Turn on the LAN control mode
For the smart color picker behind the TV to operate, you must activate the Yeelight App’s LAN control of the light strip (Fig. 11) and ensure that the light strip and the TV are connected to the same network.

Fig. 11 Opening the LAN control of the luminaire (Image source: Yeelight App)
Step 5. Activate the smart color picker
Turn on your Xiaomi TV and find the “Yeelight TV Companion” app, as shown in Fig. 12. The software scans and immediately adds the light strip, as shown in Fig. 10. In order to get it into position, utilize the remote control’s directional buttons. There can only be one hot zone per strip, although there can be several devices per hot zone. As a result, if there are four light strips, each one can represent one of four hot zones: A, B, C, and D. With simply one or two light strips, one or two hot zones may be represented.
The private cinema has now been erected to a satisfactory level of completion. Find your favorite movie and have a great time watching it with your family as soon as possible!


Fig. 12 Demonstration of the smart color picker (Image source: Yeelight TV App)
The future of smart lighting is here!
The Coolest Gaming Light to Take Home
For many gamers, even when they have a computer at home, the gaming room or internet café is still the place to go. Gamers prefer the ambience of a gaming room, while public areas sometimes have little or no relaxed and customized setting. Therefore, why not make your house, where you feel comfortable and cozy, your own game studio and just chill? Create ritualistic and ambient gaming room light by fixing up your bedroom, study and computer, and enjoy some epic time in the private space. What’s even more exciting for gamers is that colorful game room lighting can be matched to the state of the game character, making it even cooler than a gaming room.
Deciphering the Gaming Room Lighting Design
Whole-Room Colored Light to Evoke a Tech Vibe
Professional gaming room is not only about being well-equipped, but also very much focused on creating a spacious environment. If you’re looking for a place to play video games in a futuristic and technical setting, look no further than gaming rooms. Some players even use gaming room lighting design to “dress up” their home gaming environment so they can immersive themselves just as in a commercial gaming room (Fig.1)
Players want to be immersed in the game’s world and experience its mood while they play. The use of RGB colored light in lighting design applications is best for generating a cool ambiance. Cool colors like blue, green, and purple should be used when creating a cool vibe. And if you look at the luminaires, you’ll see that gaming rooms tend to be decorated with a lot of light strips. This is because light strips’ linear impact might amplify the feeling of modernity. In addition, to establish the ambiance, gaming room light fixtures often include colored light strips behind the monitor.


Fig. 13 Game room lighting design (Image source: Pexels)
Replicating a Gaming Room’s Lighting is Tricky, But not Impossible
Game event synchronization: let the lighting respond to game events
Colored light strips are commonly used to embellish gaming rooms’ ceilings, walls, and other surfaces with lighting effects. Immersive experience for gamers is often resulted from predetermined light color and lights that sync with the game. Well, smart colored lights are a good solution to this problem.
In Fig. 14, for example, the light turns red when the character is injured and running low on blood; when the character regains energy, the light slowly turns green; even when the player is lying down or killing an opponent, the light can dance to the gamer’s preference with various lighting effects. Aren’t you wowed?



Fig. 14 Lights that dance to your game
The Overwolf platform, an open gaming application and service platform that provides apps for hundreds of popular games, including real-time guide, data analysis and video recording tools, achieves such a cool look by integrating lighting and gaming activity (Figure 3). The partnership of Yeelight and Overwolf bright us a novel gaming application that captures key events in the game while mapping these events to different lighting scenes. It’s possible for players to add different lighting effects to these game sceneries to make the gaming experience even better. This means that if a victory is achieved in a game, the player can map the victory event to a light strip whose color, blinking frequency and rhythm reflects the game event. There’s more on configuring the lights to work with the Overwolf platform coming up in the following content. Let’s get to it!

Fig. 15 Overwolf platform website (Image source: Overwolf)
Musical Rhythms and Streaming Light: a More Dynamic Light
Overwolf’s website is presently only available in English. If you find the configuration process a little tedious, you can get a similar effect by using the smart light’s “Music Rhythm” or “Streaming Light” features. The music rhythm function causes the colored light to change color at random in response to the music’s beat, as if it were a musical note. The “microphone mode” is one of the two modes of music rhythm. You can activate “microphone mode” while playing a game, and the light will change color.

Fig. 16 The Music Rhythm feature in the mobile app (Image source: Yeelight App)
Another streaming light function, similar to the running light effect, is as shown in Fig. 17. The smart colored light can be cycled after setting the four primary colors of the light effect, the speed, and the brightness of the stream. The dynamic flowing light atmosphere can certainly enable a more immersive gaming experience.

Fig. 17 Streaming light feature in the mobile app (image source: Yeelight App)
An Easy Guide to Creating Private Gaming Room Lights
Step 1: Design the Luminaire Layout
The “Game Mode” luminaire can be designed in a way that allows gamers to let their imagination run wild. In the “Game Mode” example illustrated in Fig. 14, you can use any smart light fixture that emits colored light behind the computer monitor, you can place any smart light fixture around the computer desk that emits colored light, such as a bedside lamp, floor lamp, colored light bulb, etc.
Step 2: Select a Light Source for the Best Game Room Lighting Effect
You don’t need an additional smart linkage device for game event synchronization, music rhythm, or light streaming function; here are the recommended smart luminaires with color light function.

Fig 18 “Game mode” luminaire recommendations (Image source: Yeelight)
Step 3: Set the Lighting Mode and Smart Linkage Mode
1. Turn on the LAN control mode of the luminaire
To allow game event linkage between the luminaire and the Overwolf platform, turn on the luminaire’s LAN control mode (Fig. 19) and make sure the luminaire and the computer are both connected to the same network.


Fig. 19 Activate LAN control of the light (Image source: Yeelight App)
2. Download the Overwolf platform and install it (please refer to https://www.overwolf.com/ for details)

Fig. 20 Download Overwolf platform page (Image source: Overwolf)
3. Follow the webpage prompts to configure the game event linkage plugin




Fig. 21 Configure the plug-in on the Overwolf platform (Image source: Overwolf)
4. Configure the light effect
If there is more than one fixture in use, choose the one you wish to utilize and then choose the event that corresponds to that fixture from the list that displays; the default selection is all. The game event linkage configuration is now complete.
Turn on “Game Mode” and fully immerse yourself in the game’s universe while showering the mystical power of stunning gaming light.
What is the Best Lighting for Your Dining Room? Look Here!
From a vivacious Chinese restaurant to a romantic Western eatery to a quiet coffee shop and a hip and trendy bar, each eating location has a different interior design aesthetic. People no longer choose a restaurant just based on the quality of the food; the ambiance and surroundings of the restaurant are just as important.
Restaurant lighting design enables us to create a proper environment without sacrificing elegance, as those starred restaurants or internet-famous restaurants. Although we can’t take the hard and soft furniture from a star-rated restaurant with us, with brilliant restaurant lighting design ideas, you can “transfer” the lighting to our own bar or restaurant and bring flair into your house with smart lighting’s rich scene modes. What kind of lighting do restaurants and bars have? Let’s build a private dining bar where we can enjoy the experience of a star-rated restaurant or bar in the comfort of our own home.
Decoding Star-Rated Restaurant’s Lighting Design
Using Gorgeous Chandeliers in a Smart Way
A restaurant is a place where people come to eat, and the lighting should highlight the table, the food, and the surroundings. This is especially important in fine dining establishments.
If a restaurant serves Western cuisine, the lighting will reflect that, as would the decorating flair. The lighting design in Fig. 22, for example, illustrates the aesthetic of a high-end restaurant, which typically utilizes concealed lighting, which conceals the light strip within the circle above the light track or in the ceiling. For the most part, however, the dominant light over a dining table will be provided by a beautiful chandelier acting as flood lighting. This creates a welcoming dining and conversation setting while also addressing the space’s aesthetic demands.

Fig. 22 Lighting design of a high-end restaurant (Image source: Pexels)
Depicted in Fig. 1, is a typical lighting design of high-end Western restaurants. Western restaurants feature a few practical lighting fixtures but are highly effective at generating ambiance with a range of ornamental fixtures. In addition, Western restaurants are also clever in employing colored light to create character.

Fig. 23 Upscale Western restaurant lighting design (Image source: Pexels)
When picking a beautiful chandelier, the designer will take the dining table’s length into account to avoid having the dining lights shine in unison. Chandelier installation requires consideration of the distance between the fixture and the dining table. Eye strain can be caused by a chandelier that’s too near to the dining room table. Chandeliers may be categorized as follows based on how light is split: all-round diffusion, shading lamp covers, transparent lamps covers, and linear lamps. As an added bonus, multiple chandelier combinations are set up in different ways to offer people a different vibe (Fig. 24). While you may utilize spotlights to create a star hotel eating experience if the restaurant has a picturesque background or decorative painting. After all, good background lighting can boost appetite.

All-round diffusion type
Large luminous surface, no glare

Shading lamp covers
Dark ceiling

Transparent lamp cover
Large luminous surface, easy on eyes

Linear type
Long light has a minimalist and modern feeling to it

Fig. 24 This diagram shows how to arrange many chandeliers in various configurations.
Light that Makes Food Taste Better
Color, flavor, taste and form are all important for a dish, with “color” taking precedence. If exposed to cool light, i.e. high color temperature light, it will directly affect the “color” of the dish and therefore the appetite. For this reason, the majority of restaurants use warm light sources (Fig. 4). Typically, high-end restaurants will choose luminaires with a color rendering index Ra ≥ 90. As shown in Fig. 5, the higher the color rendering index, the more realistic your food will look when viewed in artificial light, enhancing your eating experience.

Fig. 25 Food under warm light and cool light

Fig. 26 Food under high color rendering index and low color rendering index
Create a Bar Vibe with Colored Lights
The bar is a vital aspect of the restaurant scene, and it’s where the party begins. What considerations go into the lighting design of a bar? Fig. 27 shows an example of a bar.
To begin with, a floodlight over the bar illuminates the space. This is supplemented by a hanging pendant light. Using wall washing RGB color light and colored lights identifying the edge of the bar, the lighting design aims to generate ambiance.

Fig. 27 Bar lighting design (Image source: Pexels)
The Secret to Replicating the Lighting Design of a Fancy Restaurant
Dining Scenario: Enjoying a Meal with the Loved Ones
The smart lighting design of the restaurant must first meet the daily dining needs: three meals a day with family and friends. Therefore, the overall lighting atmosphere of the restaurant should have a cozy and pleasant feel to it so that families can enjoy their meals without feeling rushed or stressed. Fig. 28 shows the lighting impact of a high-end restaurant employing spotlights and light strips to enhance the ceiling, taking Chinese customs into consideration. Installing high quality, high color rendering index chandeliers above the dining table will evenly light up the tabletop and make the food look more appetizing.

Colour temperature: 3000K spotlight/pendant/light strip
Brightness:100% spotlight/pendant/light strip

Fig. 28 Lighting effects and pseudo illumination color chart of dining mode
Romantic mode: enjoy the romance of the Western restaurant
Why do restaurants dim light? If a couple wants to enjoy a romantic candlelight dinner or Western dinner at home, you can learn from the lighting design of the Western restaurant environment. Lower the overall restaurant ambient light (dim or turn off spotlights) and tune the chandelier above the dining table to a lower color temperature, the ceiling of the colored light strip can be adjusted to romantic purple to spice up the atmosphere (see Fig. 29).

Color temperature: 2700K chandelier
Color: purple light strip
Brightness: 75% chandelier/ light strip

Fig. 29 Lighting effects and pseudo illumination color chart of romantic mode
Bar Mode: How Can I Turn My Dining Room into A Hipster Hangout?
Because human activities are mostly centered around the dining table in the dining mode and romantic mode, high and middle-high lighting fixtures are primarily employed to illuminate the top part of the dining room. When the restaurant is set to bar mode, we want the whole dining area to have a dynamic party vibe, thus the lighting should be divided high, medium, and low areas.
Purple and orange light strips (shown in Fig. 30) are used in the upper portion to enhance the overall ambiance. Spotlights can be employed as wall wash lights in addition to the pendant lights in the middle. A light strip around the bar creates ambiance in the low area while illuminating as supplemental lighting in the low area.

Color temperature: 2700K pendant light
Color: purple, orange light strip and spotlight
Brightness:75% pendant/spotlight/light strip

Fig. 30 Lighting effects and pseudo illumination color chart of bar mode
An Easy Guide to Create a Star-Rated Home Dining Bar
Step 1: Designing the Lighting Layout
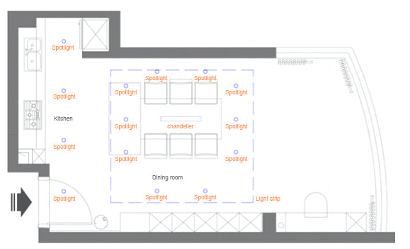
Lights in the dining room, as shown in the Fig. 31, use a variety of luminaire types such as spotlights, strips, and pendants. Despite the limited number of lighting options, the rational lighting pattern and adjustable function of the smart lighting make it simple to produce various dining modes.

Fig.31 Lighting layout in a dining room
Step 2: Purchase Luminaires
Fig.32 provides purchase suggestions for dining room luminaires based on the luminaire configuration shown in Fig.31

Fig.32
Step 3: Set the Lighting Mode and Smart Linkage Mode
To achieve three distinct lighting effects in a restaurant, as in eating mode, romance mode, and bar mode, suitable lighting standards must be established. The smart home system or voice control can then be used to manually activate the mode. Various modes can be switched using standard voice control instructions.
1. Connect your gadget to your smart home automation system.
Connect the lamp and speaker to your smart home’s automation system by following the product’s instructions.
2. Arrange the luminaires in a pleasing pattern.
Group the dining room and kitchen spotlights, as well as the ceiling light strips, so that all of the light fixtures in those areas may be managed as a unit. Each of the other luminaires is separately regulated.
3. Add voice commands and lighting control modes to the system.
Open the Xiao Ai App and enable training as shown in Fig. 33 to see an example of Xiaomi smart speaker settings. To begin with, customize the voice control by adding commands such as “I’m going to eat,” “Start western dining mode,” and “Start bar mode”. After that, include control protocols in your device. The lights can be set to different modes based on the spoken instructions that are issued to the voice speaker.



Fig.33 Voice control commands for “dining mode”, “romance mode” and “bar mode” and rules for controlling the lights (Image source: Xiao Ai App)
The Best Hallway Lighting Ideas You Need to Know
Hallway gives your guests the first impression of your living room and home, second only to the front door in importance. When guests arrive, walking through a hallway with the right lighting design will give them a sense of dignity and set the tone for your living room’s lighting design.
This article will break down hallway lighting design scheme with a case study of a world-renowned luxury hotel, “W”. Let’s find out how they use colored light and space to create a blend of modern design art and traditional culture.
This article will deconstruct a hallway lighting design scheme using a case study of the “W” hotel, a world-renowned luxury hotel. Discover how they employ colored light and space to create a fusion of modern art and traditional culture.
How to Design Hallway Light that Makes Your Esteemed Guests Feel Welcome
We may borrow a page from the W Hotel’s book and use purple, crimson, or deep orange colored light to create an exquisite and friendly ambience in your hallway. However, utilizing high-saturation purple alone is impossible to achieve the illusion of light haloing the atmosphere of space. So, depending on the spatial structure of the entry hall and corridor, the mix of white and purple light may be employed judiciously to generate a three-dimensional lighting effect for your hallway.
Taking a large flat floor with a south-facing living room and a west-facing entrance as an example (Fig. 34), we separated the hallway area into two halves (Fig. 35). The space near the end of the hallway is illuminated with purple lights, while red and yellow lights illuminate the space near the entrance. With this color scheme, guests may feel a sense of dignity when they enter your place.

Fig. 34 Floor plan of a large flat with a south-facing living room and a west entry.
What is the lighting idea for a dark hallway? As in the lighting effect in Fig. 36, the entire hallway is illuminated by spotlights embedded in the plasterboard as hallways’ ceiling lights, that is, the main light. To establish the ambiance, the wall and ceiling are also outfitted with colorful light strips on both sides. Orange and purple tones are among the greatest choices in this instance. It is vital to remember, however, that the colored light strips, while vivid, must be soft and easy on the eyes. Simultaneously, for convenience, both sides near the ground can be lighted with auxiliary lights to avoid donning shoes or tying shoelaces in the dark. In addition, if your hallway is not too long, it is possible to install colored light strips on both sides of the ceiling, while configuring orange and violet light to the front and back of the area (Fig. 37).

Color temperature: 3000K spotlight/wall light
Color: Orange, purple.
Brightness:100% spotlight/wall light/light strip

Fig. 36 Pseudo-color chart of the light effects and illuminance for a welcoming environment

Color: orange, purple light strip
Brightness:100% light strip

Fig. 37 Pseudo-color chart of the light effects and illuminance for a welcoming environment
An Easy Guide to Create Welcoming Hallway Lighting
Step 1: Design the luminaire layout
We can take an easy approach to design the hallway lighting by referring to Fig. 36. Following the order of high to low, the high section lighting consists primarily of spotlights in the middle of the ceiling, as well as a colored light strip on both sides of the ceiling; in the middle section, you can use wall lamps and light strips; and in the low section, light strips are also used.
Step 2: Purchase lights
The effect shown in Fig. 36 is achieved by the following three types of luminaire.

Step 3: Set the lighting mode and smart linkage rules
Since welcoming mode is not something that you may use every day, it is not suitable for using smart door linkage. A smarter choice is to use voice control or smart scenario panels when needed. Here, we will take voice control as an example to see how to implement the welcoming mode.
1. Connect the device to the smart home system.
Follow the product usage guidelines to connect the luminaire and speaker to the Smart Home system.
2. Set up the grouping of the luminaires
Group the spotlights and the ceiling light strips separately; the light strips near the end of the corridor (e.g. 3m on each side of the ceiling) are a purple light zone and the light strips near the doorway (e.g. 2m on each side of the ceiling) emit orange hue.
3. Add voice control commands and light control rules.
Here is an example of Xiaomi smart speaker settings, as shown in Fig. 38. Open Xiao Ai App and activate training. First, customize the voice commands, such as “guests are coming”. Then, using “Device Control,” add the lighting control rules.

Fig. 38 Voice control commands and luminaire control rules for a welcoming mode (Image source: Xiao Ai app)
